Icone Alerte CRÉER UNE ALERTE
Acheter

Investissement LMNP Studio meublé Tours centre

+ de critères
+ de critères

Investissement LMNP Studio meublé Tours centre

118 250 € Vente

Référence de la propriété

BEVST1560020904

Surface

21.6 m²

Pièces

1

Type

Studio

Localisation

37000, Tours

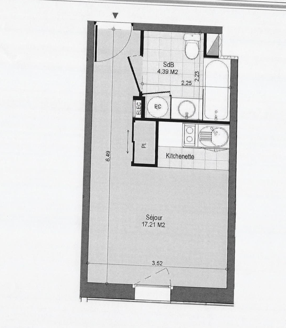
Description

À vendre studio meublé situé au sein de la résidence de services Néméa Appart’Hôtel Tours Centre, en plein cœur de Tours.
Idéal pour un investissement locatif en statut LMNP, ce studio de 21,50 m2 bénéficie d’un bail commercial avec gestion assurée par l’exploitant, permettant de percevoir des loyers sans gérer la location.
Caractéristiques :


Studio meublé


Surface : 21,50 m2


Résidence de services


Bail commercial en cours


Loyer annuel : 4 390,46 € TTC


Investissement simple et sécurisé, idéal pour se constituer un patrimoine immobilier.




Pas de procedure en cours.




Contactez Elise BRANGER au 06.98.37.97.77 ou par mail à l'adresse : elise.branger@myfrenchagent.com
DPE NOUVELLE VERSION « CLASSE ENERGIE : C - GES - A». Estimation des coûts annuels d'énergie du logement : entre 410EUR et 6100€ EUR (base 2023). Les informations sur les risques auxquels ce bien est exposé sont disponibles sur le site Géorisques : www.georisques.gouv.fr. Le prix de vente est de 118 250€ honoraires d'agence sont à la charge du vendeur. - Annonce rédigée et publiée par un Agent Mandataire -

Informations complémentaires

Référence de la propriété BEVST1560020904 Surface habitable 21.6 m²
Nombre de pièces 1 Séjour /
Nombre de chambres / Parking 0
Exposition / Piscine 0

DPE

GES

elise-branger

Elise BRANGER

Votre French Agent

Je m’appelle Elise BRANGER et je suis votre French Agent sur La Ville Aux Dames et ses alentours. Si vous recherchez ou souhaitez vendre un bien sur ce secteur et ses alentours, contactez-moi et discutons chez vous de votre projet. Profitez de l’estimation gratuite lors de notre rendez-vous si vous souhaitez vendre votre bien.

Contacter l'agent

Biens similaires